<<公司概况>>
我公司是一家经国家相关部门批准注册的企业,公司以市场开拓和技术开发为先导,是专业生产加工、经销批发风机、电机、辅助开关、断路器、交流接触器、热继电器、漏电断路器、温控器、加热器、变压器、稳压器、墙壁开关等200余个系列,6000多种低、高电器产品规格的私营合伙现代化企业,并先后荣获“SIO9001国际质量管理体系证书”。 公司严格按照国家制造标准运行,多年来,我们培养了一 支制造的专业化队伍:我们已有二十余年来的制造经验:为用户堤供 安全、可靠的优良产品。该产品广泛应用于铁路、公路、桥梁、隧道、冶 金、化工、船舶、炼油和食品等工矿企业,产品在使过程中深受国内外用户的好评。 我们以雄厚的实力、合理的价格、优良的服务与多家企业建立了长期的合作关系,公司本着“诚信为本,用户至上,信誉第一”的经营宗旨,回报用户, 奉献社会,热诚欢迎各界人士前来参观、考察、洽谈业务! 咨询电话:0577-62759593
YWZ2系列液压制动器
一、概述 YWZ、YWZ2、YWZ3、YWZ4、YWZ5等系列液压块式制动器主要用于起重、运输、冶金、矿山、港口、建筑机械驱动装置的机械制动,具有制动平稳,安全可靠、维修方便、耗电少、寿命长、无噪音等优点。①WYZ系列操作次数每小时可达720次。符合JB/ZQ4388-86标准;②WYZ2系列操作每小时可达1200次,符合JB/ZQ4388-86标准;③YWZ3系列操作每小时可达720次,符合GB6333-86标准;④YWZ4系列操作每小时可达1200次,符合JB/ZQ4388-86标准;⑤YWZ5系列操作每小时可达1200次,符合GB6333-86标准;
二、产品型号及意义
三、使用条件1、环境温度-20℃~+50%(低于推动器改为YH-10航空液压油)2、空气相对湿度不大于90%3、一般用于三相交流电源,50HZ,380V;4、海高度符合GB755-87标准;5、在无爆炸危险,且介质中无足以腐蚀金属和破坏绝缘的气体及放电尘埃中;6、YZW、YZW3使用YTI系列推动器,一般适用于垂直工作,倾斜度不超过±去 15°
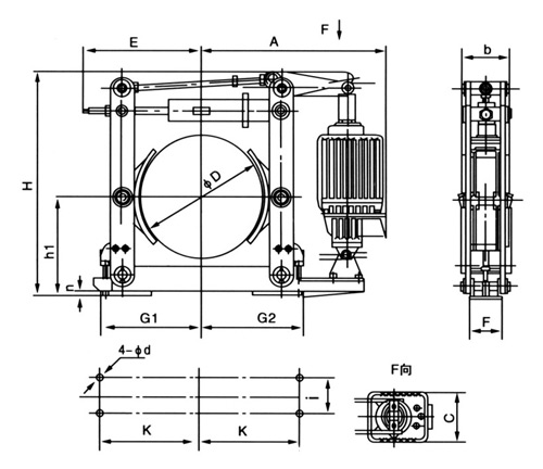
四、外形尺寸图
五、技术数据、外形尺寸表(毫米)
型号
匹配推动器
制动力矩N.M
退矩
D
h1
H
G1
G2
C
b
d
i
K
F
YWZ2-100/22
MYT3-22/4
40
0.6-1.6
100
366
125
144
13
110
75
YWZ2-150/22
140
0.8-1.5
150
419
170
60
17
YWZ2-200/40
MYT3-40/4
200
411
195
175
YWZ2-300/40
400
0.7-1.4
300
240
575
275
80
22
250
130
YWZ2-300/70
MYT3-70/5
630
0.7-.8
25
190
YWZ2-400/70
1000
0.8/1.6
320
725
350
325
YWZ2-400/125
MYT3-125/5
1600
0.8-1.6
220
180
YWZ2-400/125E
MYT3-125E/5
YWZ2-500/125
2500
0.9/1.5
500
895
405
380
YWZ2-500/125E
YWZ2-600/200
MYT3-200/8
5000
1-2.3
600
475
1080
26
YWZ2-600/200E
MYT3-200E/8
YWZ2-700/315
MYT3-315/8
8000
1.2-2.2
700
550
1245
687
34
540
270
YWZ2-800/315
12500
1.4-2
800
1390
620
物流:顺丰速运、申通快递、圆通快递、中通快递、天天快运、及全国公铁联运。目的地:全国主要城市或中转、主要港口(宁波、上海、厦门、福州、广州等)。
◆◆◆◆◆◆◆可代办运输运费到付,也可含运费送货◆◆◆◆◆◆◆
手 机:13025022188 13251056677
电 话:0577-62759593
QQ:97027569
97027570
您对此产品的咨询信息已成功发送给相应的供应商,请注意接听供应商电话。
对不起,您对此产品的咨询信息发送失败,请稍后重新发起咨询。