









QTZ315塔式起重机
QTZ315塔式起重机是满足GB/T5031<<塔式起重机>>和GB5144<<塔式起重机安全规程>>等标准设计的加强型塔式起重机,额定起重力矩315t·m ,最大起重量为16吨,有 TC7020、TC6524、TC6028、TC5236等类型。该机起升机构、回转机构、变幅机构均为变频调速机构,电控系统采用进口元件,安全保护装置为机械式或机电一体化产品,齐全可靠,该机具有固定、行走、附着、内爬等工作型式,可满足城市中高层建筑、工业厂房、电站水坝、桥梁等各种建筑施工的需要。

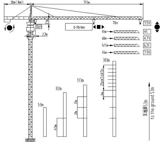
QTZ315技术参数
机构工作级别 Working grades for mechanism | 起升机构Hoisting mechanism | M5 |
回转机构Slewing mechanism | M4 |
变幅机构Trolley travelling mechanism | M4 |
行走机构Travelling mechanism | M3 |
起升高度 Hoisting height (m) | 倍率 Multiplying | 行走式 travelling | 固定式 Undercarriage stationary | 附着式 Attached | 内爬式 Inside climbing |
a=2 | 57 | 53 | 301 | 301 |
a=4 | 57 | 53 | 200 | 200 |
a=6 | 57 | 53 | 101 | 101 |
最大起重量(t) Max. hoisting capacity (t) | 16 |
幅度 Radius (m) | 最大幅度Max. radius | 70 |
最小幅度Min. radius | 2.7 |
起升机构 Hoisting mechanism | 倍率 Multiplying | a=2 | a=4 | a=6 |
起重量(t) hoisting capacity(t) | 2.5 | 5 | 5 | 10 | 8 | 16 |
速度(m/min) Speed (m/min) | 0~120 | 0~60 | 0~60 | 0~30 | 0~40 | 0~20 |
功率 (KW) Power (kW) | 65 |
变幅机构 Trolley travelling mechanism | 速度(m/min) Speed (m/min) | 0~80 |
堵转力矩(N.m) Moment (N.m) | 95 |
回转机构 Slewing mechanism | 速度(r/min) Speed (r/min) | 0~0.7 |
堵转力矩(N.m) Moment (N.m) | 2×95 |
行走机构 Travelling mechanism | 速度(m/min) Speed (m/min) | 20 |
功率 (KW) Power (kW) | 4×7.5 |
顶升机构 Climbing mechanism | 速度(m/min) Speed (m/min) | 0.46 |
功率(kw) Power (kW) | 11(15) |
| | 液压系统额定工作压力(Mpa) Rated working pressure for hydraulic system (Mpa) | 30(外爬Outside climbing) 35(内爬Inside climbing) |
平衡重 Counter-weight | 起量臂长 Jib length(m) | 45 | 52.5 | 60 | 65 | 70 |
平衡臂长(m) Counter-jib length(m) | 16 | 16 | 20 | 20 | 20 |
平衡重(t) Counter-weight | 25.95 | 27.75 | 24.6 | 25.95 | 27.75 |
总功率(KW) Total power(KW) | 117.5 |
轮距×轴距(m) Wheel×axle gauge(m) | 6.5×6.5 |
工作温度(℃) Operating temperature(℃) | -20~+40 |
