插板闸门主要技术参数
型号CBZ900×1500/810×1500/380×1500/760×1500
安装位置细格栅/旋流除砂渠道
渠宽×渠深900×1500/810×1500/380×1500/760×1500
承压方向正向受压
止水方式三边橡胶止水
启闭形式手盘启闭机
工作制间歇运行
插板闸门主要结构组成和部件材质
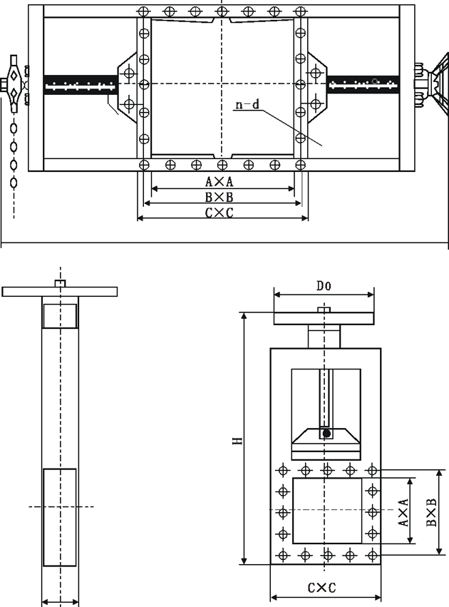
插板闸门主要由门架、门框、门体、密封止水橡胶、丝杆、启闭装置等部件组成。1、主要结构 (1) 门框、门架采用钢板在剪板机上下料,在折弯机上折边,在专用工作台上拼装焊接。结构牢固合理,能承受活动载荷,门框保证在受到启闭机重力和启闭力反作用力时不变形。(2) 门体用钢板加工成方形板,在其迎水面用钢板焊接“井”字形加强筋。确保了门体的不变形。闸门为暗杆式启闭,在门体上部的重垂线部位设置启闭螺母,留有丝杆通道,保证闸门平稳地升降。 (3) 止水橡胶采用优质产品,此产品弹性高,止水效果好、耐腐蚀、抗老化。用钢板压条和螺栓把止水橡胶固定在门框边上。(4) 丝杆采用圆钢精加工而成,其螺纹精度达7e级标准,保证了与启闭螺母的密切配合。
零件名称 | 闸框 | 闸板 | 丝杆 | 密封圈 |
材质 | 304 | 304 | 304 | 橡胶 |
材质 | 碳钢 | 碳钢 | 碳钢 | 橡胶 |
材质 | 316 | 316 | 316 | 316 |
BXH | B | H | A | L | C |
300*300 | 300 | 300 | 400 | 800 | 100 |
400*400 | 400 | 400 | 500 | 1000 | 100 |
500*500 | 500 | 500 | 600 | 1200 | 100 |
600*600 | 600 | 600 | 700 | 1400 | 100 |
700*700 | 700 | 700 | 800 | 1600 | 100 |
插板闸门结构简单、操作灵活、重量轻、无卡阻、切断快,特别适用于各类无粘度的固体、粉料及小于Φ10mm的颗粒料,晶粒料的输送及流量调节,安装不受角度限制,操作方便,能随时调节开度。该阀门有手轮和链轮操纵两种操作形式,单向和双向两种结构形式LZD为单向、LZS为双向。
插板闸门工作原理:启闭机带动闸门门体上下运行,达到疏通和截阻水流的作用。
插板闸门供货范围
整机供货:包括门框、门架、门体、启闭机、丝杆
插板闸门配套专用启闭装置,仅需注明手动或电动即可,无需另外注明启闭机型号
插板闸门的发展趋势:插板闸门产品市场容量大小及其发展趋势是证监会十分关注的问题。市场容量一般用插板闸门产品的市场需求量或者市场规模(销售额)来表述。涉及近三年甚至更长时间的历史数据和未来3-5年募投项目达产时的市场容量数据。 插板闸门产品的未来的市场容量应该是不断增长的,历史的数据则尊重事实。历史数据如果有较大的波动还需要进一步解释其原因,表明其不会对未来有不利影响。如果确实是周期性规律,则要在未来的市场容量预测中考虑该周期性的影响。 插板闸门产品的未来的市场容量还需要保障能够容纳募投项目带来的新增产能。而募投项目新增的插板闸门产品产量和当前企业的产量之和是未来拟上市企业插板闸门产品的总产量,其与市场容量的比值极为市场占有率。因此,未来市场容量数据也要考虑插板闸门企业市场占有率是提升还是下降。企业市场地位的上升与下降要与行业发展的趋势和竞争格局的走势相一致。
全国免费电话:四零零/零三一九/五一六 手机联系人:一八九零三二九八九八五(郎先生)
【400-0319-516】 【18903298985】
