QTZ63B塔式起重机
QTZ63B塔式起重机是满足GB/T9462<<塔式起重机技术条件>>和GB5144<<塔式起重机安全规程>>等标准设计的加强型塔式起重机,额定起重力矩63t·m ,最大起重量为6吨,有 TC5610、TC5013、TC4516、TC4020等类型。该机起升机构变极调速,回转机构为变频调速机构,变幅机构行星齿减速机内置卷筒,电控系统采用进口元件,安全保护装置为机械式或机电一体化产品,齐全可靠,该机具有固定、行走、附着、内爬等工作型式,可满足城市中高层建筑、工业厂房、电站水坝、桥梁等各种建筑施工的需要。

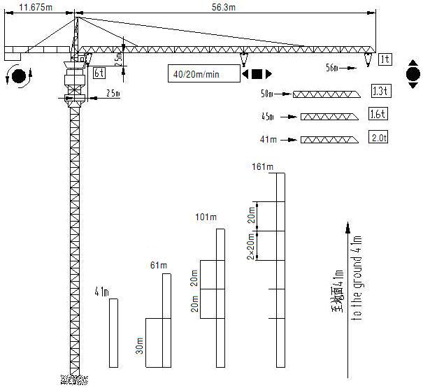
QTZ63B技术参数
型号 | QTZ63B(5610) | (5013) |
幅度(M) | 56 | 50 |
独立高度(M) | 41 | 41 |
最高高度(M) | 141 | 141 |
最大起重量(T) | 5 | 6 |
附墙架(道) | 4 | 4 |
主肢材料 | 135×135×10 (方钢管) | 135×135×10 (方钢管) |
标准节截面尺寸 | 1.835×1.835 ×2.5 | 1.835×1.835 ×2.5 |
起升速度(a=2)m/min | 80/40/8.5 | 80/40/8.5 |
回转速度r/min | 0.64 | 0.64 |
变幅速度m/min | 42/21 | 42/21 |
底座形式 | 1.十字梁斜撑杆有压重式 | 1.十字梁斜撑杆有压重式 |



【起升机构】:

起升机构(1560Kg)采用YZTDF225L2-4/8/32型三速电机,由电机通过齿形联轴节带动减速箱,再驱动卷筒。使起升获得三种不同的起升速度,启制动平稳,冲击小。当采用2绳时速度可达80m/min、40m/min、10m/min,采用4绳时可达40m/min、20m/min、5m/min。
在减速箱输入轴端装有液压推杆制动器(YWZ3-315/45)(见图4-13)。在卷筒一侧装有高度限位器,高度限位器可根据所需高度进行调整,控制可靠、操纵简单、维修方便。
【回转机构】:

回转机构是为塔机上部回转提供动力的传动装置,该装置由尾部带制动器的力矩电机、行星减速器、小齿轮、回转限位器等组成;本塔机采用了两套这样的装置,对称地分布于回转支承两边,安装在上支座上,其小齿轮与回转支承的大齿圈啮合。
减速器输入端带有一个常开状态的盘式制动器;可用于塔机顶升以及固定点作业时起重臂制动定位。
回转限位器用于控制塔机在某一个方向只能回转540°,以防扭断电缆。
【变幅机构】:

变幅机构(320Kg)采用双速电机YDEJ132-4/8-3.3/2.2驱动,经由行星减速器带动卷筒,通过钢丝绳使载重小车获得23/46m/min两种速度在起重臂架上来回高速运行。
电机尾部带有一盘式制动器,当小车电机断电时延时制动。
幅度限位器用于防止误操作,使小车在碰到起重臂根处的缓冲器前即停止运行。
【塔身标准节】:


主肢局部特写:
塔身节按设计强度有两种规格,即加强节和标准节,加强节比标准节壁厚2mm,加强节和标准节之间用8-M36特制高强度螺栓连接,每三节有一休息平台,同一规格标准节具有互换性。
【起重臂】:
起重臂采用双吊点空间绗架结构,共分9节,在第二、第六节臂的上弦杆各设一拉杆吊点,各节臂之间用销轴连接。在第一节臂上装有小车牵引机构,臂端装有钢丝绳防扭装置。最大臂长为56米,还可组装成51米、46米、41米等4种臂长,满足不同旋转空间需要。在起重臂臂架根节安装小车变幅机构并设有走台框,方便安装与维修。
【上、下支座】:
上支座安装在回转支承上面且与回转支承的内圈联接。下支座是起重机不可回转部分的一厢形支座,在它的上平面装有回转支承外齿圈,下支座与回转支承的外圈通过螺栓联接,借助回转机构实上、下支座间的相对回转运动。上支座上接回转塔身,下支座下接塔身标准节。
【回转塔身】:

回转塔身下端用4个高强度销轴与上支座相连接,上部与塔顶销接,前后两端耳板分别与平衡臂和起重臂连接。上部装有起重量限制器。
【回转限位器】:

【塔顶】:
塔顶是一个斜锥体,上端通过拉杆与起重臂和平衡臂连接并使二臂保持水平,下端用4个销轴与
回转塔身连接,为了安装起重臂拉杆和平衡臂拉杆,在塔顶上部设有工作平台和滑轮组。
【驾驶室】:
驾驶室是司机操纵塔机的工作室、它固定在回转塔身右侧。联动操纵台的各指示灯和手柄位于司机驾驶室座椅两侧,操作方便,视野广阔。
驾驶室电控箱设置在驾驶室后部,主电路总断路器,照明及辅助断路器等装置。
【附着装置】:
由一套环梁和4根撑杆组成。安装时环梁紧卡塔身,撑杆二端分别与环梁和建筑物上预埋的支座铰接,经调节螺杆张紧4根撑杆,使塔机与水平面垂直建筑物可靠地连结合在一起并保持塔机轴线与地面垂直。
【起重量限制器】:

【行走装置】:

行走机构有二个主动台车,主动台车由电机、液力偶合器、蜗轮减速器、盘式制动器、开式齿轮幅和行走轮等组成。液力偶合器保证塔机起制动平稳,行走速度为20米/分。
YZ160M2-6-7.5KW交流电机借助主令控制器控制机构的运行。蜗杆轴尾端的常闭盘式制动器,工作时松开,停机断电后延时制动。延时时间可调,以保证停机滑动距离短且不因制动过急产生塔机晃动。
在主动台车外侧装有两个行程开关,控制塔机行走不超出设定的极限位置,以保证塔机的安全。
【电控系统及安全装置】:

本系统采用了可编程逻辑控制器进行中央控制,电控系统采用国际通用型式,低压电器采用进口电器元件,积木式组合,卡轨式安装,采用集中于司机室的两个十字型主令控制器和按扭开关操纵,省去了大量的用于逻辑控制的中间继电器和时间继电器,同时采用全球性采购,使用了国际名牌产品,如OMRON(欧姆龙)的PLC,Schneider的接触器,从而大大的提高了整个系统的可靠性,同时也为故障的判断定位和排除提供了方便。此外还包括风速仪、障碍灯等电器安全装置和小车断轴保护和牵引绳断绳防溜车等机械安全装置。