
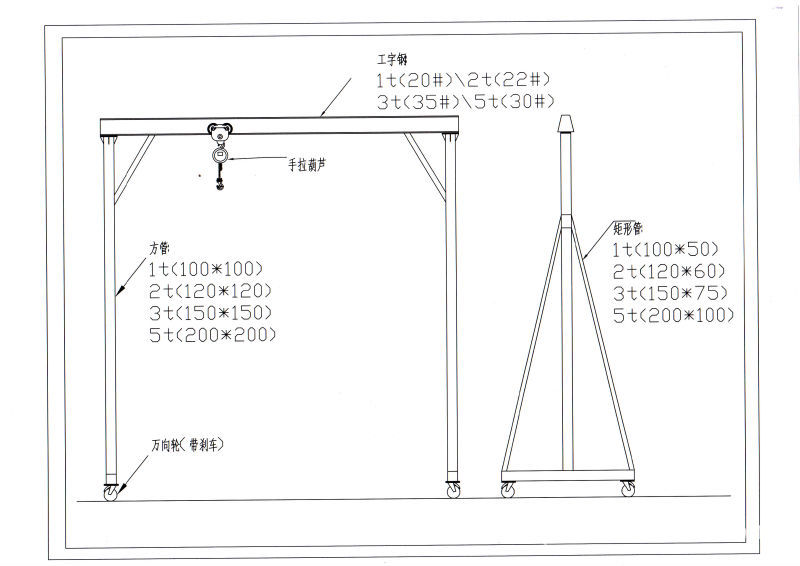
移动起吊小型龙门架是根据中、小工厂(公司)日常生产需要搬运设备、仓库进出货,起吊维修重型设备及材料运输的需要,开发出来的新型小型起重龙门架。适用于制造模具、汽修工厂、矿山、工地及需要起重场合。
该移动龙门架最大的优点是可全方位移动性,可快速拆卸安装,占地面积小,用微型汽车就可转移到另一个场地安装使用。宽度、高度可分级调节,钢架构设计合理,能承受100~5000KG重量,高度和宽度也可订制。
适用于车间设备的安装、搬运、调试、 汽车上货物的装卸,汽修车间吊装发动机大件等。起重小型龙门架主要有二种规格:一是在地面上全方位移动的龙门架,带刹车承重轮可在地面上移动,适合在地面上起吊物品;二是用钢轨固定安装在楼板面或梁上,通过电动或人力葫芦,实现起重机械化。可减少人力,降低生产运营成本,提高工作效率。我司可根据客户的现场情况定做不同的产品。移动小龙门架可配套手拉葫芦、钢丝绳电动葫芦及环链电动葫芦使用。
价格仅供参考,买家可以根据吨位,跨度,起升高度的不同来确认价格。












企业目标:决胜行业竞争,开拓国际市场。
企业精神:团结勤奋、开拓进取、爱我奥展、勇于创新。
质量方针:生产卓越产品,追求完美服务,持续推进名牌战略。
环境方针:优化环境、防治污染、净化水质、排放达标。
奥展人对未来的誓言:努力、再努力、更努力。
奥展人对用户的承诺:信任、 放心、 满意。

上海奥展起重机械有限公司。主要经营起重机、钢丝绳电动葫芦、环链电动葫芦、起重电器、起重机配套产品等。公司自成立以来,一贯以“诚实守信,客户就是上帝”为宗旨,因此取得了广大客户的信任和支持,产品行销全国各地。长期以来,通过诚挚的服务与高品质的产品质量,与众多厂商建立的广泛的合作关系。客户群随着公司业绩的壮大而不断扩展,涉及的行业类别越来越多。
本公司一切从客户的利益出发,为客户创造价值是本公司可持续发展的根本动力,本公司优越的产品性能,合理的价格、完善的服务、环保节能的设计理念,必然会为带来可靠的后勤保障和辉煌的经济效益,一支以技术全面、发展迅速、工作高效见长的售后服务队伍,给您提供全方位的优质服务,确保您所选择的本公司产品时刻处于良好的运行状态。
创新无限,信誉永恒!公司全体员工竭诚欢迎各界友人惠顾与合作,让我们用真诚和智慧共同谛造美好的生存空间,实现利益的双赢!

单位名称:上海奥展起重机械有限公司
地 址:嘉定区安亭镇方德路250弄120号
电 话:021-59503043
传 真:021-61401732
Email:aozhanqz@