更多
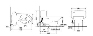
TOTO东陶连体式坐便器太平洋系列
1台起批
¥
0.00
点此议价
广州兴兆建材有限公司
广州市天河区广州天河区大观中路1号701室
全部商品
查看联系方式
产品属性
图文详情
品牌推荐
品牌/型号
TOTO/CW904B
型号
CW904B
品牌
TOTO
加工定制
否
材质
陶瓷
颜色
白色
太平洋系列产品,时尚设计,自然优雅。
采用智洁技术,超越纳米尺度的超平滑表面,不给污垢以容纳的空隙,污垢难以黏附,清洁更为轻松。不必使用过多的水和清洁剂。
Duravit杜拉维特Starck 3 斯达克3 小便器
¥面议
Duravit杜拉维特D-Code 蒂科 挂壁式净身器
¥面议
瑞士GEBERIT吉博力隐藏式水箱冲水面板
¥面议
瑞士GEBERIT吉博力隐藏式水箱冲水面板
¥面议
KOHLER科勒卫浴美诺双重系统按摩K-11214T-W01
¥面议
GEBERT瑞士吉博力UP120杜菲斯自立式水箱
¥面议
五金零部件、配件、备品备件
>
水暖卫浴五金
>
其他水暖卫浴五金
>
获取验证码
允许同品行业优质供应商联系我
您对此产品的咨询信息已成功发送给相应的供应商,请注意接听供应商电话。
对不起,您对此产品的咨询信息发送失败,请稍后重新发起咨询。
关闭
登录
|
注册
首页
|
我的马可
触屏版
电脑端
马可波罗版权所有1999-2020