本公司可定做:各种护栏网、防护网、隔离网、荷兰网、安全网、球场护栏网、操场护栏网等。主要用于路边、厂房、仓库、车间、学校球场、小区、果园、鱼塘、菜地、鸡鸭养殖场地、建筑场地的防盗、隔离。规格品种齐全。
【品名】双边型护栏网
【材质】 外:包塑 内:优质铁丝
【颜色】草绿色(其它颜色联系在线客服)
【网孔】9*17cm (+-0.5cm)
【网丝】3.2mm(+- 0.1mm )
【立柱】厚度1mm左右
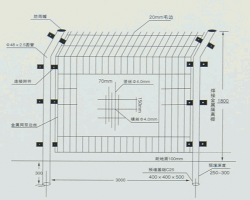
【高度】立柱2.2左右
【弯头】有弯头(如上图)
【网片高度】1.8米x3米 (+-0.05m)
【产品套装】一张网片和一根柱子(以上主图仅供参考)
【价格】11元一平米 59 元一套(一张网片和一根柱子)