'
厦门艺顺机械设备有限公司,具体要求可以咨询客服人员。
公司:厦门艺顺机械设备有限公司
地址:厦门湖里区殿前象屿五金机电城2-5
电话:0592-2298778 0592-2298776
主营产品:仓储物流设备,仓库笼,物流台车,手推车,平板车,置物架,折叠式仓储笼,钢制托盘,周转箱,叉车,空压机,角轮等

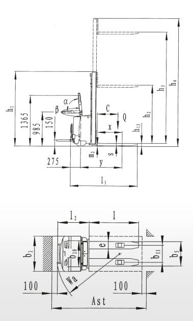
特性 1.2 型号 CL1529 CL1529FFL CL1534 CL1534FFL
1.3 驱动方式:电动(蓄电池),柴油,汽油,燃气,手动 蓄电池
1.4 驾驶方式(手动,步行,站驾,坐驾 ,拣选) 步行式
1.5 额定承载能力 Q (t) 1.5
1.6 载荷中心距 C mm 600
1.8 前悬距 x mm 677
1.9 轮距 y mm 1183 1168
重量 2.1 自重 Kg 1020 1040 1120 1140
2.2 满载时桥负荷 前/后 Kg 1195/1325 1205/1335 1245/1375 1225/1385
2.3 空载时桥负荷 前/后 Kg 755/265 770/270 826/295 840/300
轮子车体 3.1 轮胎 (橡胶轮, 高弹性体, 气胎轮, 聚胺酯轮) 聚胺酯轮
3.2 轮子尺寸 前轮 250×78
3.3 轮子尺寸 后轮 80×70
3.4 附加轮子(尺寸) 150×54
3.5 轮子数量 (前/后)(x=驱动轮) 1x+2/4
3.6 前轮轮距 b10(mm) 685
3.7 后轮轮距 b11(mm) 390/515
尺寸 4.2 门架缩回时高度 h1(mm) 1950 1950 1695 1695
4.3 自由提升高度 h2(mm) 144 1482 - 1104
4.4 起升高度 h3(mm) 2814 2814 3314 3314
4.5 作业时门架最大高度 h4(mm) 3280 3280 3904 3904
4.9 操作手柄在驱动位置时的高度 最小/最大 h14(mm) 985/1365
4.15 降低时高度 h13(mm) 86
4.19 总体长度 l1(mm) 1940 1925
4.2 货叉表面至前部距离 l2(mm) 790 775
4.21 车体宽度 b1(mm) 805
4.22 货叉尺寸 s/e/l(mm) 60/180/1150
4.25 货叉外宽 b5(mm) 570/695
4.32 轴距中心离地间隙 m2(mm) 50
4.33 直角堆垛通道宽度,拖盘1000×1200(1200跨货叉放置) Ast(mm) 2162 2147
4.34 直角堆垛通道宽度,拖盘800×1200(1200沿货叉放置) Ast(mm) 2136 2123
4.35 转弯半径 Wa(mm) 1480 1465
性能 5.1 行驶速度,满载/空载 km/h 5.1/5.4
5.2 提升速度,满载/空载 mm/s 105/170
5.3 下降速度,满载/空载 mm/s 100/95
5.8 最大爬坡能力 满载/空载 % 6/12
5.1 行车制动 电磁制动
电机 6.1 驱动电机功率 kw 1.2
6.2 提升电机功率 kw 3
6.3 蓄电池 DIN标准, 不是 3PZS
6.4 蓄电池电压/额定容量 V/Ah 24/210
其它 8.1 驱动控制方式 场效应管控制
8.4 驾驶员耳边噪音水平根据EN12053 dB(A) 67
1)单轮 Φ80×93

'