'
扬州橡树湾装修-扬州面对面装饰/一号家居网-扬州橡树湾装修 装修热线:0514-87851966 15189875518 在线QQ:2275152788 公司网站:http://yz.yihaojiaju.cn
主营:扬州家庭装修,扬州装修,扬州别墅装修,扬州面对面装饰,扬州装修效果图,扬州室内设计,扬州一号家居网,扬州装潢设计,扬州好的装修公司,扬州客厅装修效果图,扬州装修网,扬州面对面,扬州装修公司排名,扬州家装网
面对面装饰集团/一号家居网拥有遍布全国各地的实体分公司,业务涉及家装、设计、建材、家居等一系列产品和服务。一号家居网依托自身强大的实体资源,遍布全国各地的分公司、大型展厅和体验中心,结合自身强大的技术实力,来自世界500强企业优秀的营销和管理人员以及来自大型电商企业的顶级设计人才、电子商务专家,以及我们多年来在家装领域服务的专业经验和对于未来智能家装的深刻理解,致力于为广大消费者打造一个完整的融合线上线下家装服务的O2O网络商城,做中国最好的在线家装平台,我们的理念是:智慧家, 才是最好的家。
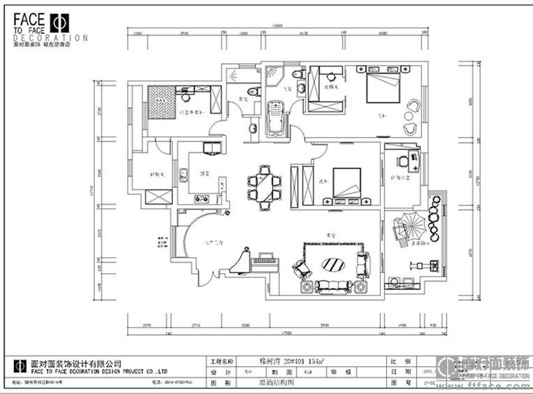
【装修地址】橡树湾
【装修面积】154平
【户 型】三室两厅
【装修风格】简欧
【装修预算】10万
【装修公司】面对面装饰集团/一号家居网扬州站(登陆一分钟知道您家装修预算)
【装修热线】0514-87851966 15189875518
【 在线QQ】:2275152788






扬州橡树湾装修-扬州面对面装饰/一号家居网-扬州橡树湾装修 装修热线:0514-87851966 15189875518 在线QQ:2275152788 公司网站:http://yz.yihaojiaju.cn
主营:扬州家庭装修,扬州装修,扬州别墅装修,扬州面对面装饰,扬州装修效果图,扬州室内设计,扬州一号家居网,扬州装潢设计,扬州好的装修公司,扬州客厅装修效果图,扬州装修网,扬州面对面,扬州装修公司排名,扬州家装网
'