'
扬州联发君悦华府房子装修-扬州面对面装饰-扬州君悦华府房子装修
装修热线:0514-8785196615189875518 在线QQ:2275152788
主营:扬州家庭装修,扬州装修,扬州别墅装修,扬州面对面装饰,扬州装修效果图,扬州室内设计,扬州一号家居网,扬州装潢设计,扬州好的装修公司,扬州客厅装修效果图,扬州装修网,扬州面对面,扬州装修公司排名,扬州家装网
快速报价系统,真真是极好用呢!使用快速报价系统,风格、户型全考虑,一分钟之类就能让您对装修预算了如指,快速报价体验入口:http://yz.yihaojiaju.cn
一号家居网(www.yihaojiaju.cn),隶属于南京壹号家信息科技有限公司;目前拥有南京、武汉、北京、广州、上海、重庆、成都、贵阳、合肥、昆明、青岛、无锡、长沙、南昌、南通、安庆、常州、池州、滁州、镇江、郑州、淮安、泰州、盐城、扬州、芜湖、香港等27家分站。十年专业家装,中国在线家装领导者。是中国领先的以城市地域为核心的集家装、设计、建材、家居等一系列产品和服务的O2O网络平台。是中国在线家装行业最具影响力的电子商务平台。
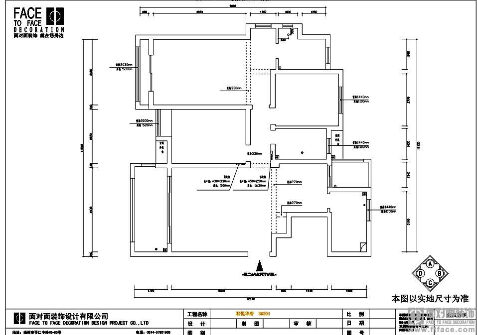
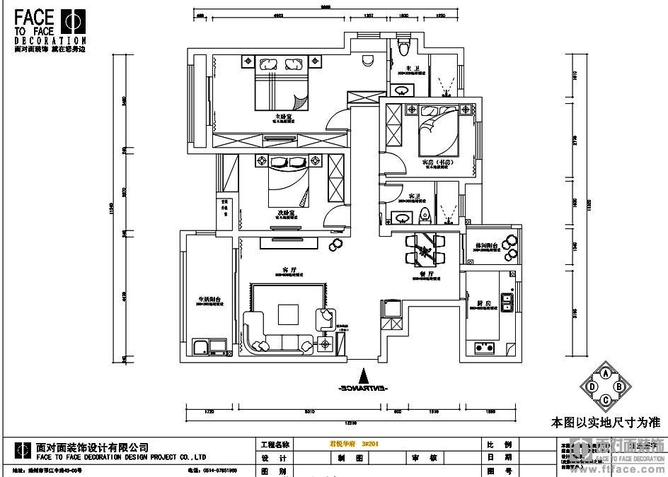
【装修地址】联发君悦华府
【装修面积】133平
【户 型】三室两厅
【装修风格】现代简约
【装修预算】全包14万
【装修公司】面对面装饰集团/一号家居网扬州站(登陆一分钟知道您家装修预算)
【装修热线】0514-87851966 15189875518
【 在线QQ】:2275152788






扬州联发君悦华府房子装修-扬州面对面装饰-扬州君悦华府房子装修
装修热线:0514-8785196615189875518 在线QQ:2275152788
主营:扬州家庭装修,扬州装修,扬州别墅装修,扬州面对面装饰,扬州装修效果图,扬州室内设计,扬州一号家居网,扬州装潢设计,扬州好的装修公司,扬州客厅装修效果图,扬州装修网,扬州面对面,扬州装修公司排名,扬州家装网
'