一、产品概述:
100X隔膜式遥控浮球阀是兼具多种功能的水力操作式阀门.主要安装于水池或高架水塔的进水口处.当水位达到设点的高度时.主阀由浮球导阀控制关闭进水口停止供水.当水位下降后.主阀由浮球开关控制打开进水口向水池注水.实现自动补水.液位控制精确.不受水压干扰.100X隔膜式遥控浮球阀可随水池的高度及使用空间任意位置安装.维护.调试.检查方便.密封可靠.使用寿命长.隔膜式阀门性能可靠.强度高.动作灵活适用于450mm口径以下的建议使用活塞式。
二、工作原理:当管道从进水端给水时,由于针阀、球阀、浮球阀是常开的,水通过微型过滤器、针阀、控制室、球阀、浮球阀进入水池,此时控制室不形成压力,主阀开启,水塔(池)供水。当水塔(池)的水面上升至设定高度时,浮球浮起关闭浮球阀,控制室内水压升高,推动主阀关闭,供水停止。当水面下降时,浮球阀重新开启,控制室水压下降,主阀再次开启继续供水,保持液面的设定高度。
三、主要零部件


五、外形连接尺寸:

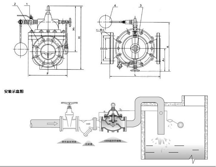
安装要求:
1、在安装此阀前,应将管道冲洗干净,可视水质情况一年保养一至二次。
2、遥控浮球阀系列产品优先考虑水平安装。
3、水力控制阀前应装截止阀或软密封闸阀以便于维修。
4、遥控浮球阀主阀和浮球阀即整体安装亦可遥控安装,水管要求固定,勿受振动。
维修保养与故障排除:
|
故障现象 |
故障原因 |
排除方法 |
| 水池溢水 |
导阀橡胶垫片损坏 |
更换垫片 |
|
浮球焊缝漏水 |
更换浮球 |
|
连杆活塞被异物卡住 |
清除异物 |
| 水位过低 |
导阀体内有杂物 |
清除杂物 |
| 有异常声音 |
主阀体内有杂物 |
清除杂质 |
|
关闭速度不合理 |
调节针阀开启度 |
|
|
|
注:拆阀(1)取下主阀外部配管及控制阀; |
|
|
(2)按对角钱对称松开螺母,拧入顶丝,卸下阀盖,取出弹簧;
(3)拧下阀杆止退螺母,取下膜片压板及膜片;
(4)取出阀瓣,胶垫压板和大O型胶圈,逆时针松开阀座,取出垫圈。
订货须知:
遥控浮球阀产品名称与型号、遥控浮球阀口径、遥控浮球阀是否带附件以便我们的为您正确选型。若已经由设计单位选定我司的遥控浮球阀型号,请按遥控浮球阀型号直接向我司销售部订购。当使用的场合非常重要或环境比较复杂时,请您尽量提供设计图纸和详细参数,由我们的专家为您审核把关。
如有任何疑问,您可以联系我们,我们一定会尽心尽力为您提供优质的服务。