dzh-卧式蒸汽锅炉
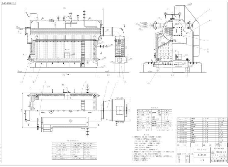
新型dzh蒸汽锅炉为单锅筒纵置式水火管锅壳锅炉。燃烧设备为活动炉排。炉膛左右两侧水冷壁为辐射受热面,两翼烟道及锅筒内螺纹烟管为对流受热面。前后炉墙和两侧水冷壁外面采用耐火砖砌筑而成。
新型dzh蒸汽锅炉为单锅筒纵置式水火管锅壳锅炉。燃烧设备为活动炉排。炉膛左右两侧水冷壁为辐射受热面,两翼烟道及锅筒内螺纹烟管为对流受热面。前后炉墙和两侧水冷壁外面采用耐火砖砌筑而成。
该锅炉采用拱型管板、螺纹烟管等技术,解决了锅壳式锅炉的管板裂纹,锅筒下部鼓包、热效率低、煤质适应性差等问题。
燃烧过程:
燃料进入炉膛在炉排上燃烧,生产的烟气沿锅筒底部经有中间隔墙上的出烟口进入两翼对流管束,通过前烟箱进入螺纹烟管,经过除尘器,由引风机抽引通过烟囱排入大气。
技术特点:
⑴、采用拱型管板与螺纹烟管组成锅筒,使锅筒由准钢性体变为准弹性体结构,取消了管板区的拉撑件,减少了应力。管板内烟管由两回程改为单回程,解决了管板裂纹的难题。
⑵、锅筒下部由于布置了上升管排,消除了锅筒底部的死水区,使泥渣不易沉积,锅筒高温区能得到良好的冷却,预防了锅筒下部鼓包。
⑶、采用高效传热螺纹烟管,获得了强化传热效果,达到锅炉升温、升压快的特点,提高了锅炉的热效率。
⑷、结构紧凑,与同类型锅炉比较,外性尺寸小,节省锅炉房基建投资。
⑸、运行稳定、调整方便、出力足。具有110%超负荷能力。
⑹、 采用螺纹烟管强化传热,提高了传热系数和热效率,由于烟气在管内有扰动作用。烟管内不易积灰,起到自清扫的作用。
⑺、炉膛内的八字墙、出口烟窗部分均有一定降尘作用。使锅炉的原始排尘浓度控制在标准以下,保证了锅炉烟尘排放达到国家环保规定的指标。
产品出厂:
该锅炉为整装出厂。鼓风机、引风机、除尘器、电控台、水泵、阀门、仪表、烟风道接管等,按图纸配套出厂或按合同规定出厂。按出厂技术文件清单提供随机技术文件两份。 厂家直接供应2吨然煤蒸汽锅升压快出力足新型2吨蒸汽锅炉价格合理.主要用于:化工企业 制衣 制药 酒店 浴池 染色 采暖 烘干 加热等行业 技术参数 


产品实拍图 


发货展示 
库存展示
企业介绍 
河南省四通锅炉有限公司是国家定点生产B级锅炉制作企业,四通锅炉工业园紧邻311、106国道与周商、永登、大广高速公路,交通便利、辐射深远。公司拥有完善的质保体系与先进的生产工艺;科学严谨的管理模式和优良的售前、售中、售后服务;深睿德治的企业管理理念和典雅的企业文化。公司在业界可谓:成绩斐然,有口皆碑。也正是“四通锅炉进万家,安全温暖你我他”。
公司现生产有燃煤、燃油、燃气、电热蒸汽、热水锅炉,有机热载体锅炉、高中温热风炉等13个系列100多种规格型号。主要产品有:环保节能型半煤气蒸汽(热水)锅炉;有机热载体炉;垃圾焚烧炉;高、中温热风炉等13个系列100多个规格型号。主要产品有:
1、LSH(C)系列立式蒸汽锅炉、CLSH(C)系列立式热水锅炉;
2、SZL系列快组裝锅炉:2---20T/h蒸汽锅炉、1.4---14MW热水锅炉;
3、DZL系列·新型水火管锅炉:1---100T/H蒸汽锅炉、0.7---70MW热水锅炉;
4、WNS系列燃油(气)锅炉:0.5---35T/H蒸汽锅炉、0.35---29MW热水锅炉;
5、SZH系列环保半煤气锅炉:0.5---10T/H蒸汽锅炉、0.35---7MW热水锅炉;
6、YGL 、YLL 、YLW 、YY(Q)W系列有机热载体锅炉:0.12---14MW锅炉;
7、ZLRF系列高、中低温热风炉:0.12--2.8MW锅炉;
8、压力容器产品:如反应釜、蒸压釜、储气罐;
锅炉年生产能力达8000蒸吨,产品畅销全国二十九省、市。其中华东地区及沿海发达地区城市成为靓丽市场,先后出口东南亚、非洲及俄罗斯、欧美洲等八十个国家和地区,2012年首次出口美国休斯顿,是河南省出口美国唯一一家锅炉企业,显示出中华民族工业的勃勃生机。
公司依科技为先导,人力为支撑;质量为保证;满意为目标经营策略;推行“你满意,我放心”的服务宗旨;灌输“你的选择,是我的动力”的思想;实行物、卡检同步流转的生产管理;创造富有东方神韵的企业内涵;制造适应绿色家园的锅炉产品。
公司注重“以人为本”的公司文化,拥有一支专业化的开发、设计、生产员工队伍,以及一支高素质、经验丰富的管理团队。
公司始终坚持“科技创新、质量第一”的方针,十分重视新技术的引进和新产品的开发,还制订了多项优惠政策,创造宽松的人才环境,广纳各方精英,出现了人才与企业共同成长的良好局面,先后与西安交大、华南理工大学、郑州大学、北京之光锅炉研究所等高等院校和科研单位有长期的合作关系,拥有独立的CAD工作站,高级工程师5名、工程师10名、技术支持人员20多人,为公司新产品的研发和制造提供有力保障。不断超前的宗旨,并遵循“出厂一台锅炉,交一位朋友,建一项示范工程,开发一片市场”的经营理念,24小时的专家值守电话和电脑网络服务,随时提供精诚的帮助。不断赢得更多市场份额及用户的信赖,为“四通锅炉”走向国际化奠定了基础。
“四通锅炉”资质厚重、企文浓郁、科技为先,走“产业化、规模化、国际化、品牌化”发展之路,瞄准科技制高点,打造“豫通”品牌,携手国内同行,共创中国锅炉行业的辉煌!
销售案例 
生产车间 
企业资质 