电动闸板门,电动方形闸板阀主要由框架、丝杆、螺母、阀板组成,手轮的转动,使丝杆螺母带着丝杆和阀板任水平方向的往复运动,达到阀门的启闭目的。该阀是一种粉料、晶粒料、颗粒料及小块物料的流量或输送的主要控制设备,广泛使用在冶金、矿山、建材、粮食、化工等行业控制流量变化或迅速切断。

电动闸板门,电动方形闸板阀主要性能参数
|
型号规格 |
LMD-_DN300*300 |
|
公称压力 |
0.05 |
|
壳休试验压力 |
0.075 |
|
|
|
|
驱动方式 |
|
|
电动 | |
|
| |
|
介质流速 |
28m/s |
|
适用温度(℃) |
300 |
|
适用介质 |
干燥粉体物料、晶体料等 |
电动闸板门,电动方形闸板阀主要零部件材料
|
零件名称 |
阀体 |
阀板 |
阀杆 |
手轮 |
|
材料 |
Q235-A |
Q235-A |
45#钢 |
QT450 |
电动闸板门,电动方形闸板阀结构特点
本阀结构简单、操作灵活、重量轻、无卡阻、装拆方便;特别适用于各类固体物料和50mm左右块状、团状物料的输送及流量调节,安装不受角度限制,操作方便,能随时调整开度。采用优质碳素钢焊接结构,其强度高、性能好、使用寿命长。
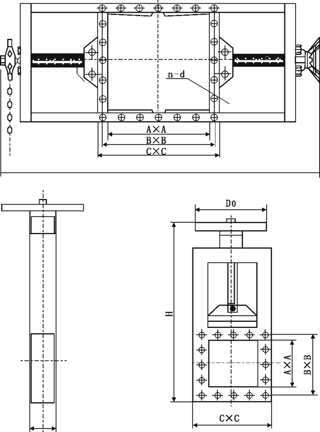
电动闸板门,电动方形闸板阀主要零件材料及连接尺寸
|
类别 |
A×A |
B×B |
C×C |
H |
L |
n-d |
重量 |
|
单向 |
200×200 |
256×256 |
296×296 |
820 |
100 |
8-Φ12 |
62 |
|
250×250 |
306×306 |
346×346 |
930 |
100 |
8-Φ14 |
70.5 | |
|
300×300 |
356×356 |
396×396 |
1050 |
100 |
8-Φ14 |
81 | |
|
400×400 |
456×456 |
496×496 |
140 |
100 |
12-Φ14 |
114 | |
|
450×450 |
510×510 |
556×556 |
1450 |
120 |
12-Φ18 |
130 | |
|
500×500 |
560×560 |
606×606 |
1610 |
120 |
16-Φ18 |
147 | |
|
双向 |
600×600 |
660×660 |
706×706 |
1830 |
120 |
16-Φ18 |
169 |
|
700×700 |
770×770 |
820×820 |
2130 |
140 |
20-Φ18 |
236 | |
|
800×800 |
870×870 |
920×920 |
2440 |
140 |
20-Φ18 |
303 | |
|
900×900 |
974×974 |
1030×1030 |
2660 |
160 |
27-Φ23 |
424 | |
|
1000×1000 |
10741074 |
1130×1130 |
2870 |
160 |
24-Φ23 |
636 | |
|
说明 |
LMD-单向 |
I-手轮 |
距地面小于1.7米用手轮,大于1.7米用链轮 | ||||
电动闸板门,电动方形闸板阀产品特点:
螺旋闸门具有结构简单、操纵灵活、重量轻、无卡阻、特别适用于各类固体物料和50mm左右块状、团状物料的输送及流量调节,安装不受角度限制,操作方便,能随时调整尺度,可双向操作,简单灵活。材质有碳钢、不锈钢,并可按客户需求定做各种非标螺旋闸门。

电动闸板门,电动方形闸板阀安装、使用要点
1、安装前应仔细阅读本说明、并核对阀门型号、通径及技术参数。
2、严禁装上阀门后施焊法兰,以免损坏阀门密封圈。管道自先预留的阀门安装距离应适当,法兰两边加垫片。
3、两管道中心与阀门通径中心应保持同轴,法兰面应平整,不允许法兰面有较大的偏斜,以保证阀门的夹紧和正常工作。拧紧螺栓应做到均匀对称
您好欢迎您访问我公司网站宗力阀门售后服务承诺
对于贵公司在宗力阀门订购阀门产品,我厂在售后服务方面作如下承诺:
一、我公司对产品质量实行三包,即:包质、包换、保修;
二、合同签订后,保证保质、保量,按时交货;
三、本公司确保所提供阀门产品达到合同指标
四、对于需方的技术咨询,随时给予解答;
五、在交付设备时,本厂向需方交付以下资料:发货清单、产品合格证、产品样本、产品使用说明书、技术资料;
当接到用户反应质量问题的信函或电话后,宗力保证24小时内作出答复最快解决问题。