轴承 各种型号非标轴承 不锈钢轴承 微型轴承 欢迎下订单哦
查看供应商
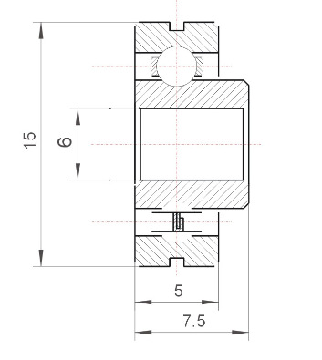
查看完整图文
立即询价
其他相关图集
SKF轴承 热处理电机用骨架轴封
调心滚子轴承、深沟球轴承、V型/微型/单列/双列-型号齐全
德国INA线性循环滚子轴承PR14032 RWB14英制滚动块RWB14
144-8300 1448300 卡特轴承 油封 轴套
轴承118370carraro卡拉罗拖拉机装载机车桥配件
轴承座+轴承1
肇庆电机轴承座替换怡合达LEB32滚珠丝杆固定座支撑座厂家现货
TISO轴承座 UCF206外球面铸钢轴承座 厂家直销替代进口
IKO机器人手臂轴承 高刚性交叉滚子轴承 CRBFV108ATUU
焊接机器人关节 机床转位机构 RB4010交叉滚子轴承 LYBN
五金零部件、配件、备品备件
>
轴承
>
滚动轴承
>
获取验证码
允许同品行业优质供应商联系我
您对此产品的咨询信息已成功发送给相应的供应商,请注意接听供应商电话。
对不起,您对此产品的咨询信息发送失败,请稍后重新发起咨询。
关闭
登录
|
注册
首页
|
我的马可
触屏版
电脑端
马可波罗版权所有1999-2020