
本机是与CD1或MD1型电动葫芦配套使用,适合于露天作业的固定跨间,本机禁止吊运易燃易爆物品,根据用户要求还可制成单端外伸悬臂式或无悬臂式结构。
本机工作环境温度为35℃一20℃,电源为三相交流50HZ.380V。
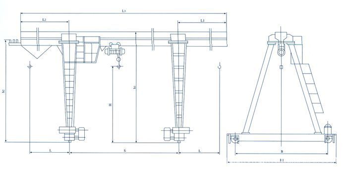
本机外形尺寸仅供参考。
| 起重量 | 跨度 | 起升高度 | 轮距B | 工作制度A5 | 电动葫芦 | 运行机构 | 主要尺寸 | 最大轮压 |
| 型号 | 起升速度 | 运行速度 | 运行速度 | 减速机 | 电动机 | h1 | h2 | B1 | L3 | 左悬臂长度L1 | 右悬臂长度L2 | 有效悬臂长度L | 起重机总重 |
| t | m | 型号 | 功率 |
| 3-3.2 | 10 | 6 | 6 | A5(中级) | CD1 MD1 | 8 8/0.8 7 7/0.7 | 20 | 34.2 | ZSC(A)-400-IV-1/2(套装) | YZ(R)132M1-6 | 2×2.5 | 7873 | 7600 | 7290 | 16420 | 3060 | 3560 | 2500 | 9.91 | 65 |
| 14 | 21820 | 3760 | 4060 | 3200 | 10.7 | 67.9 |
| 18 | 8023 | 28480 | 5240 | 5240 | 4200 | 11.4 | 70.8 |
| 22 | 8123 | 33640 | 5820 | 5820 | 5500 | 12.6 | 73.8 |
| 5 | 10 | 6 | 6 | 37 | ZSC(A)-600-IV-1/2(套装) | YZ(R)132M1-6 | 2×2.5 | 8110 | 7777 | 7290 | 16670 | 3130 | 3540 | 2500 | 10.6 | 91 |
| 14 | 6/9 | 6/8 | 8260/11260 | 7837/10837 | 7290/9290 | 22070 | 3830 | 4240 | 3200 | 12/14.6 | 95/102 |
| 18 | 6/9 | 6/8 | 38 | YZ(R)132M2-6 | 2×4 | 8411 /11411 | 7888/10888 | 7290/9290 | 28480 | 5240 | 5240 | 4200 | 15.4/17.7 | 103/110 |
| 22 | 6/9 | 6/8 | 8563/11563 | 7820/10820 | 7290/9290 | 35080 | 6540 | 6540 | 5500 | 18.1/20.8 | 108/119 |
| 8 | 10 | 6 | 6 | 37 | YZ(R)132M1-6 | 2×2.5 | 8260 | 7837 | 7290 | 17200 | 3370 | 3830 | 2500 | 12.3 | 125 |
| 14 | 6/9 | 6/8 | 38 | YZ(R)132M2-6 | 2×4 | 8411/11411 | 7888/10888 | 7290/9290 | 22600 | 4070 | 4530 | 3200 | 14.8/16.6 | 131/136 |
| 18 | 6/9 | 6/8 | 8563/11563 | 7820/10820 | 7290/9290 | 28600 | 5070 | 5530 | 4200 | 17.6/19.9 | 136/144 |
| 22 | 6/9 | 6/8 | YZ(R)160M1-6 | 2×6.3 | 8763/11763 | 7920/10920 | 7290/9290 | 35660 | 6830 | 6830 | 5500 | 21.3/23.2 | 145/159 |
| 10 | 14 | 6/9 | 6/8 | 38 | YZ(R)132M2-6 | 2×4 | 8611/11611 | 7868/10868 | 7290/9290 | 22600 | 4070 | 4530 | 3200 | 16.2/19.3 | 160/171 |
| 18 | 6/9 | 6/8 | 8786/11786 | 7943/10943 | 7290/9290 | 28600 | 5070 | 5530 | 5500 | 18.2/21.5 | 159/173 |
| 22 | 6/9 | 6/8 | YZ(R)160M1-6 | 2×6.3 | 8986/11986 | 8043/11043 | 7290/9290 | 35660 | 6830 | 6830 | 3200 | 22.5/25.7 | 176/190 |
| 16 | 14 | 6/9 | 6/8 | 38 | YZ(R)132M2-6 | 2×4 | 8888/11888 | 8045/11045 | 7290/9290 | 23100 | 4510 | 4590 | 4200 | 17.6/21.3 | 201/209 |
| 18 | 6/9 | 6/8 | YZ(R)160M1-6 | 2×6.3 | 9088/12288 | 8145/11145 | 7290/9290 | 29100 | 5510 | 5590 | 5500 | 21.3/24.6 | 209/221 |
| 22 | 6/9 | 6/8 | 9288/12288 | 8245/11245 | 7290/9290 | 35760 | 6870 | 6890 | | 25.3/28.5 | 224/232 |
服务不仅仅是搬运和维护
更多的是为客户操心,为客户着想
售后服务的宗旨:
公司本着实现顾客满意度最大化的原则,在国内各大城市设立营销服务机构,向顾客提供快捷、完善的售前、售中、售后服务。
一、在保质期内如有质量问题,本公司均按规定实行“三包”服务。
二、在接到用户关于产品质量问题通知后,立即派出售后维修人员进行处理。
三、出厂合格率:100%;
四、根据用户要求,协助安装调试,主动做好售前、售后服务工作。将管理软件安装到各营业所,并对营业所的操作人员进行软件使用培训;对产品维护管理人员进行产品知识培训。
五、定期进行产品使用普查,防患于未然
一、本公司所生产的产品保质期为12个月。
二、在保质期内如有质量问题,本公司均按规定实行“三包”服务。
三、在接到用户关于产品质量问题通知后,立即派出有关人员赶赴现场处理解决问题。
四、根据用户要求,无偿地提供技术咨询,指导设备调试和与产品有关的问题。
五、售后服务人员保证做到认真、周到、彻底处理好有关质量问题,使用户购机放心,用机安心。
六、属本公司产品质量问题的产品,一切费用有公司承担,因用户使用不当所造成的产品质量问题,本公司酌情收费,保证用户满意。
联系方式:18605486884 李(经理)