'
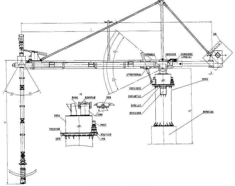
卸船机是利用连续输送机械制成能提升散粒物料的机头,或兼有自行取料能力,或配以取料、喂料装置,将散粒物料连续不断地提出船舱,然后卸载到臂架或机架并能运至岸边主输的地方送机系统去的专用机械。使用卸船机可大大提高卸货效率,最小的粉尘污染可保持环境清洁,高效环保.
卸船机特点
- 最高的运行安全
- 简单的调动
- 较少的维修工作量
- 降低损耗
- 效率
- 最大的组件标准化
- 最小的粉尘和噪音干扰


卸船机是利用连续输送机械制成能提升散粒物料的机头,或兼有自行取料能力,或配以取料、喂料装置,将散粒物料连续不断地提出船舱,然后卸载到臂架或机架并能运至岸边主输的地方送机系统去的专用机械。使用卸船机可大大提高卸货效率,最小的粉尘污染可保持环境清洁,高效环保。
联系人:付经理
传真:0371-55627399
手机:13693719020
Q Q:1472136656
公司网址:www.zzjusen.com
'