'




简介:
混凝土砂石分离机主要用于混凝土生产企业搅拌车、主机的清洗、砂、石及泥浆的分离回收再利用。该装置可彻底解决废弃混凝土的污染、浪费问题,节约了成本。是我公司科研人员深入分析国内外先进技术的基础上,自主研发的新一代环保型产品。以其独有的技术特色处于世界领先水平,成为混凝土行业的知名品牌。我公司的湿混凝土分离和回收再利用系统为客户赢得了显著的经济和社会效益。
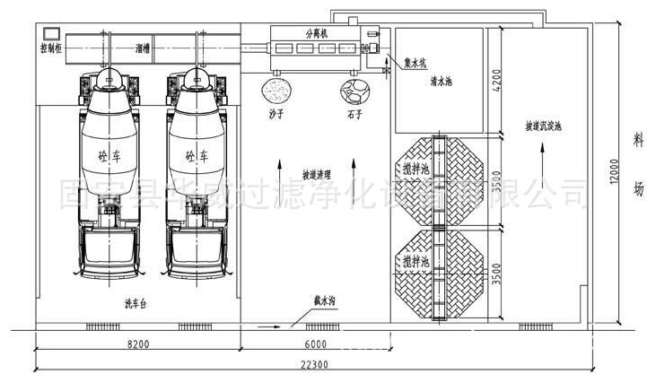
混凝土分离和回收再利用系统是利用砂石分离机对湿混凝土进行分离,使之成为砂、石和水泥浆水并分别回收和再利用。砂石分离机的供水系统,可有效地清洗混凝土设备,使清洗混凝土设备和浆水回收同时进行。清水池、浆水池和砂石分离机采取立体布置方式,占地面积小,安装结构合理、紧凑,形成一套封闭的污水处理和砂、石料回收系统,使浆水、废料均可就地回收重复利用。
产品说明:
第一、华威砂石分离机的内部为合金钢筛网滚筒,孔分布密集,网孔不易堵塞各种形状的石子易清理,同类产品为冲网板,板孔为椭圆形,孔分布间距大,石子容易堵塞且不易清理。
第二、筛筒长度达到4米,有效保证砂和石的清洗时间,真正做到有效分离,直径2米,分离能力方面保证大方量处理;其他产品只有2米多,很难保证好的分离效果,直径仅1米,处理能力难以保证,不是真正意义上的专业设备。
第三、华威砂石分离机出砂口为铲式结构,滚筒上装配有相同方向的螺旋叶片,转动的同时把砂子聚集到出砂口位置,再由铲板挖起,每次挖起都会对砂的再一次清洗,在砂清洗和积累到一定的程度后,才由出砂口排出。而其他模式产品此设备为螺旋出砂口,这也是区别于我们设备的最大之处,整条螺旋由电动机带动,且滚筒同时也会有一个电动机,整体用耗电量增加。洗车水和报废的混凝土进入分离主机后,石子留在滚筒内,砂子会随着水流进螺旋的底部,通过螺旋的旋转叶片将砂子分离出来,螺旋会被砂子及浆水掩埋,使用寿命短,另外螺旋易损难维修。
第四、华威砂石分离主机的出石口为多过程清洗模式,洗车水及报废混凝土进入主机后,经过滚筒内部叶片向前推动的同时进行一次清洗,在进入我们接料槽的时候又一次的清洗,将石子分离出来。经过这么一系列的清洗,分离出来的石子特别干净,且含水量低,可直接利用。
第五、 华威公司砂石分离机设备整体设计合理,专业的砂石料储存池不需要经常清理,并列式设计,又方便清理沙石,可有效的保正搅拌站不受污水污泥的污染,有效避免了污水污染的局面。大大节约环境资源、改善员工工作环境、提升公司美誉度及环保形象。其他厂家产品没有设计砂石储存池,分离出来的砂石要马上清理,否则就直接影响分离机的使用,分离出来的砂子含有一定的水分,在没有储存池的情况会出现污水外流,另外需要专人频繁清理沙石,增加劳动力
'