



履带吊是履带起重机的简称,是一种下车地盘是履带行走机构,靠履带行走的吊车。 起重量大,可以吊重行走。具有较强的吊装能力。拆装麻烦,适合大型工厂,在厂区工作。



产品型号 | LQ3S5 |
质量 | 2200kg |
外形尺寸 | 2850*800*1700mm(长*宽*高) |
起重力矩 | Max.5T.m |
作业幅度 | 8.3m |
吊钩高度(大约) | 起重高度 | Max.9.5m |
地平面下起重深度 | Max.12.3m |
吊臂 | 吊臂长度 | 2815mm~8747mm |
吊臂伸展速度 | 6.5m/20s |
起升角度 | -15°~75° |
回转 | 回转范围 | 360° |
回转速度 | <2R/Min |
液压泵 | 额定压力 | <18MPa |
额定流量 | 30L/Min |
额定转速 | 1500RPM |
油箱容积 | 55L |
爬行速度 | 0-2km/h |
爬坡角度 | 20° |
触地压强 | 53Kpa |
功率 | 6.6KW(9.0ps)/1500 |
履带吊外形尺寸

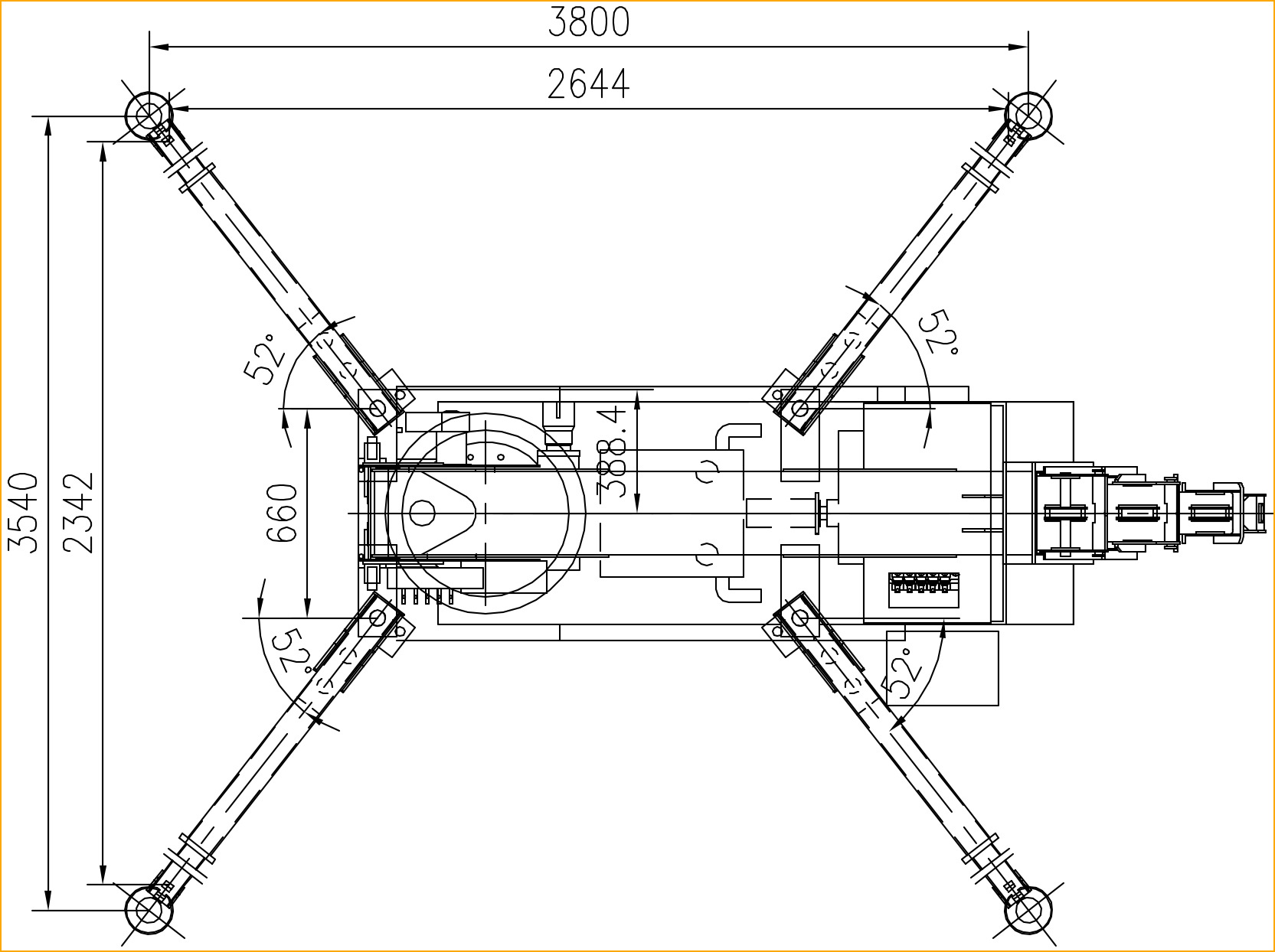
支腿伸展图

性能曲线图





主要用于狭窄空间的汽车发动机车间设备检维修,电力检维修,化工车间检维修。以及建筑幕墙安装,高铁车站的建设,及陵园石材行业等空间狭小的场合使用。

◊生产厂家


◊资质证书

◊专业售后


